Beschrijving
Luxe & instapklaar wonen in het hart van Valkenswaard
Op een fantastische locatie in het centrum van Valkenswaard ligt dit gerenoveerde 3-kamerappartement van maar liefst 80 m² met eigen berging en parkeerplaats. Gebouwd in 2006, voorzien van energielabel A en in 2024 hoogwaardig gerenoveerd. Volledig instapklaar en tot in detail afgewerkt met luxe materialen en maatwerk.
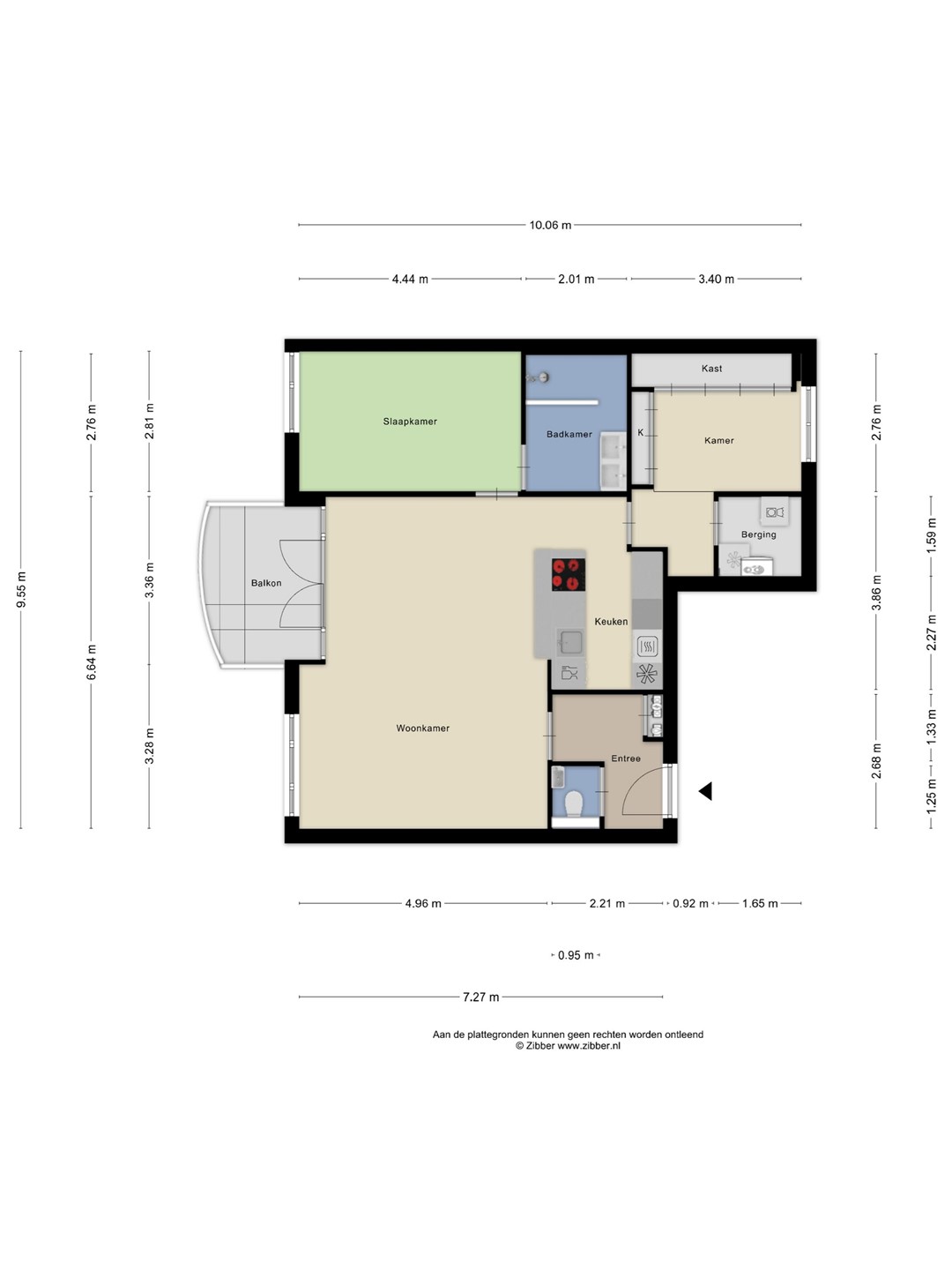
Indeling
Via het representatieve gezamenlijke portaal met brievenbussen en intercominstallatie bereik je met lift of trap de eerste verdieping.
Eerste verdieping
Een ruime ontvangsthal met garderobenis en luxe separaat toilet met vrijhangend closet en fonteintje.
Ruime woonkamer met veel natuurlijk lichtinval dankzij de grote raampartijen. Voorzien van een smaakvolle vloer en stucwerk wanden. Middels dubbele openslaande deuren toegang tot het ruime balkon aan de voorzijde.
De absolute blikvanger is de high-end keuken met schitterend kookeiland en keramiek werkblad/bar. Royale kastenwand met smaakvolle nis met indirecte verlichting. De keuken is uitgerust met alle wenselijke inbouwapparatuur zoals inductie kookplaat met geïntegreerde afzuiging, combi-oven, vaatwasser, grote koelkast, wijnklimaatkast en quooker.
Ruime hoofdslaapkamer aan de voorzijde met smaakvolle vloer en stucwerk wanden.
Directe toegang tot de luxe, in 2024 verbouwde badkamer met royale inloopdouche, design wastafelmeubel en toilet
Tweede slaap-/werkkamer met smaakvolle vloer en maatwerk inbouwkastenwand.
Interne berging met CV-opstelling en aansluiting voor wasmachine en droger
Balkon
Ruim bemeten balkon aan de voorzijde.
Bijzonderheden
Bouwjaar 2006, gerenoveerd in 2024
Woonoppervlakte 80 m2
Eigen parkeerplaats
Eigen berging
Lift in het complex
Energielabel A
Gelegen op toplocatie, nabij winkels, horeca en alle voorzieningen
Een stijlvol, luxe en energiezuinig appartement op een A-locatie in het gezellige centrum van Valkenswaard. Ideaal voor wie comfortabel en zorgeloos wil wonen met alle voorzieningen letterlijk om de hoek.