Beschrijving
In de zeer gewilde villawijk Acht-Zuid (Eindhoven) gelegen, sfeervol landhuis (Finnlogs) op schitterend aangelegd en privacy biedend perceel van 926 m2 aan de achterzijde grenzend aan groen met volwassen bomen. Het landhuis is onder andere voorzien van oprit met carport, sfeervolle en royale woonkamer, separate keuken. Op de begane grond bevindt zich nog een 2e woonkamer/kantoor, slaapkamer en 1e badkamer. Op de verdieping een ruime videkamer, 2 ruime slaapkamers en een 2e badkamer. Eenvoudige mogelijkheid 5 slaapkamers.
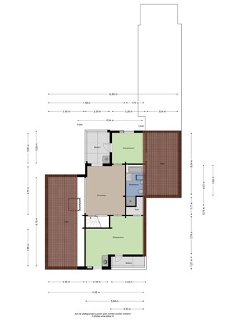
Indeling
Ruime oprit met carport en toegang tot berging.
Overdekte entree met toegang tot een ruime ontvangsthal met toilet en garderobenis.
Royale, lichte U-vormige woonkamer met vide, serre en schuifpui naar overdekt terras. De woonkamer is voorzien van extra lighttubes, een houten vloer en houtkachel.
Separate keuken met witte L-vormige keukenopstelling met alle apparatuur.
Tussenportaal met toegang tot de technische ruimte met de c.v.-opstelling en heteluchtverwarmingsinstallatie.
Inpandige berging met aansluiting wassen en drogen en openslaande deuren naar de oprit.
Aan de achterzijde van de woning is een slaapvleugel met eigen badkamer, woonkamer met schuifpui en aangrenzende slaapkamer. Deze vleugel leent zich bij uitstek voor slapen en baden op begane grond, guesthouse of kantoor aan huis.
Eerste verdieping
Royale videkamer.
1e Zeer royale hoofdslaapkamer aan de voorzijde met inbouwkast en toegang tot balkon (mogelijkheid tot splitsen in 2 kamers).
2e Ruime slaapkamer met toegang tot balkon en veel extra bergruimte.
2e Badkamer met ligbad, separate douche, wastafel, toilet en bidet.
Tuin
Fraai aangelegde voor- en achtertuin (op Zuid) met gazon, schitterende borders en bomen. Diverse terrasjes waaronder overdekte terrassen, tuinhuisje en berging. Aan de achterzijde grenst de tuin aan het groen met volwassen bomen.
Bijzonderheden
Fantastisch, sfeervol landhuis met heel veel mogelijkheden.
Gelegen op gewilde lokatie nabij alle voorzieningen, de uitvalswegen en de internationale school.
Voorzien van 12 zonnepanelen.
Energielabel B.
Slechts € 2.000,= euro voorschot gas en elektra per jaar.
Mogelijkheid voor kantoor, mantelzorg aan huis.