Beschrijving
Op een uitstekende hoeklocatie, recht tegenover een gemeentelijk plantsoen met speelgelegenheid, staat deze zeer royale uitgebouwde halfvrijstaande woning (134 m2) met vrijstaande garage. Een goed onderhouden gezinshuis met 4 slaapkamers (mogelijkheid 5) dat ruimte, licht en privacy combineert met een topligging in het geliefde Waalre. Een gunstig energielabel B met prima isolatievoorzieningen en 6 zonnepanelen.
Indeling
Via de voordeur toegang tot de verzorgde entree, waar direct de moderne afwerking opvalt: een fraaie eikenhouten whitewash vloer, strakke stucwerkwanden en -plafond met inbouwverlichting. Het moderne, separate toilet is uitgevoerd met eigentijdse betegeling en een vrijhangend closet. Vernieuwde meterkast 2023.
De zeer royale uitgebouwde woonkamer is een heerlijke leefruimte. Aan de voorzijde bevindt zich een comfortabele zithoek met vrij uitzicht op het groen, terwijl aan de achterzijde de eethoek is gesitueerd met een grote raampartij tot aan de vloer met uitzicht op tuin en terras. Centraal in de woning ligt de U-vormige keuken, onder een opbouw met daglichttoetreding – een echte eyecatcher die zorgt voor extra licht en ruimtegevoel. De keuken is voorzien van alle apparatuur en biedt veel werkruimte. Aansluitend een praktische bijkeuken met inbouwkast en een loopdeur naar de tuin.
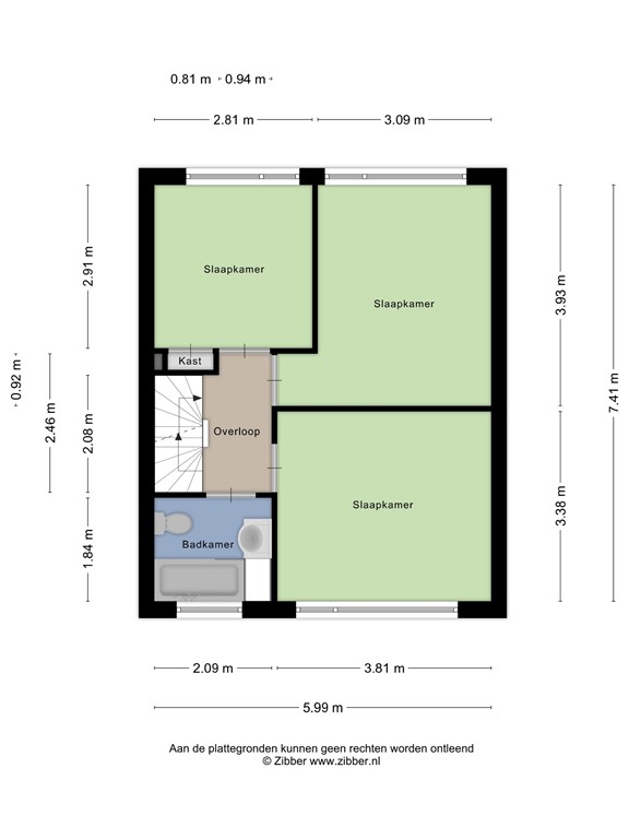
Eerste verdieping
Op de eerste verdieping bevinden zich drie ruime slaapkamers voorzien van laminaatvloer en kunststof kozijnen met dubbel glas. Licht betegelde badkamer met een ligbad, wastafelmeubel en toilet.
Tweede verdieping
Via een vaste trap toegang tot de zolderverdieping: een royale voorzolder met daglicht, een aparte wasruimte met aansluitingen voor wasapparatuur en de cv-installatie, én een zeer ruime slaapkamer met 2 dakkapellen. Deze kamer is desgewenst eenvoudig te splitsen, waardoor de woning kan worden uitgebreid naar maar liefst vijf slaapkamers.
Tuin
De privacybiedende achter- en zijtuin is voorzien van een vrije achterom en biedt tevens directe toegang tot de vrijstaande, stenen garage met bergvliering. Daarnaast beschikt de woning over een royale voortuin met uitzicht op het plantsoen.
Bijzonderheden
-De woning ligt op een absolute toplocatie: groen, rustig en toch centraal.
-Scholen, winkels en overige voorzieningen bevinden zich in de directe omgeving, bovendien ligt de woning op fietsafstand van de HTC en ASML.
-Uitstekende verbindingen naar alle uitvalswegen.
-Prima isolatievoorzieningen: geheel voorzien van dubbel glas, grotendeels kunststof kozijnen, dak- en vloerisolatie.
-6 zonnepanelen 2023.
Een zeer punctueel en keurig onderhouden halfvrijstaande woning met uitzonderlijk veel leefruimte, een vrijstaande garage en een unieke ligging tegenover het groen. Een huis waar je jarenlang met plezier zult wonen. Ervaar zelf de ruimte, rust en kwaliteit.
Plattegronden
181264615_1602978_de_ho_begane_grond_first_design_20260117_bfdefe.jpg
181264615_1602978_de_ho_eerste_verdiepi_first_design_20260117_f2f1f9.jpg
181264615_1602978_de_ho_tweede_verdiepi_first_design_20260117_0f44c2.jpg
181264615_1602978_de_ho_garage_first_design_20260117_dbf9b3.jpg
181264615_1602978_de_ho_zolder_first_design_20260117_e02cb7.jpg