Beschrijving

Op fantastische lokatie (nabij natuurgebied, alle voorzieningen en uitvalswegen) gelegen, bijzonder sfeervol en karakteristiek herenhuis met groot multifunctioneel bijgebouw (75 m2) op een fraai aangelegd perceel van 547 m2. Ideaal voor kantoor/praktijk aan huis, mantelzorg of B&B. Uitstekende verbinding met de auto of fiets naar ASML, HTC en de Internationale School.

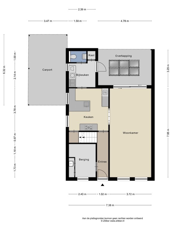
Indeling

Karakteristieke voordeur met glas-in-lood en toegang tot ontvangsthal. 

1e Werkkamer op begane grond met inbouwkasten en bureau.

Doorgang naar luxe, landelijke keuken met veel werk- en bergruimte. Uitgevoerd in eiken met natuursteenblad. Voorzien van royaal fornuis, werkeiland en kastenwand. 

Toegang tot praktische voorraadkelder.

Open verbinding naar de sfeervolle woonkamer met eiken vloer, stucwerkwanden en -plafond met sierlijst. Sfeervolle raampartijen aan de voorzijde en royale schuifpui aan de achterzijde met toegang tot overdekt terras.

Vanuit de keuken toegang tot praktische bijkeuken met aansluiting wasapparatuur. Separaat toilet met fonteintje. Loopdeur naar tuin en overdekt terras.

Eerste verdieping

Middels fraaie trappartij toegang tot overloop. 

3 slaapkamers waarvan 2 voorzien van inbouwkasten. 

Geheel betegelde badkamer met ligbad, separate douche, wastafelmeubel en zwevend closet.

Tweede verdieping

Via vlizotrap toegang tot ruime bergzolder.

Tuin

Fraai aangelegde achtertuin met gazon, borders en (hout)opslag. Fraai overdekt terras met lichtstraat en verwarming.
Royale (af te sluiten) oprit naar het royale bijgebouw. Aan de voorzijde een mooie aangelegde voortuin en grote carport met dubbele poort naar de tuin.

Bijzonderheden

-Volledig geïsoleerd, multifunctioneel bijgebouw (75 m2) met overhead deur, verwarming en elektra. Vaste trap naar verdieping. Ideaal voor kantoor/praktijk aan huis, mantelzorg of B&B.
-Fantastische ligging nabij de natuur, alle voorzieningen en uitvalswegen (o.a. ASML).
-Energielabel in de maak, vermoedelijk C.
-Bijzonder sfeervolle en landelijke afwerking.

Kenmerken