Beschrijving
Instapklare, uitgebouwde, zeer royale (145 m2) en energiezuinige woning met eigen oprit en garage. Deze instapklare, volledig gerenoveerde en geïsoleerde woning met energielabel A biedt verrassend veel leefruimte (145 m2). De multifunctionele ruimte (32 m2) op de begane grond is ideaal als woonkamer, voor praktijk aan huis of als guestroom.
Indeling
Ontvangsthal met meterkast (vernieuwde installatie 2020), separaat modern toilet met fonteintje en bergkast. Toegang tot de inpandige garage. Aan de achterzijde een zeer royale, uitgebouwde (2020) multifunctionele ruimte. Perfect als woonkamer, praktijk/kantoor aan huis of extra gastenkamer. Dankzij de grote schuifpui met HR++ glas staat deze ruimte in directe verbinding met de diepe tuin welke is voorzien van een nieuwe houten schutting en poort (2020).
Eerste verdieping
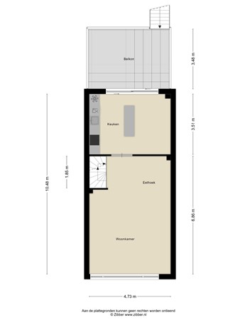
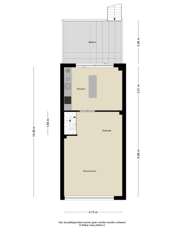
Op de eerste verdieping een ruime en lichte woonkamer met een moderne uitstraling onder andere voorzien van een fraaie vloer en stucwerkwanden en -plafond met inbouwspots. Aangrenzend ligt de separate, moderne woonkeuken met werkeiland (2020) met eetbar, compleet uitgerust met alle apparatuur waaronder een inductie kookplaat, afzuigkap, oven, koel-/vriescombinatie en vaatwasser (2024). Vanuit de keuken middels royale schuifpui toegang tot het zeer ruim dakterras, een unieke buitenruimte op hoogte met prachtig zicht op de tuin. Een vaste trap biedt rechtstreeks toegang tot de tuin.
Tweede verdieping
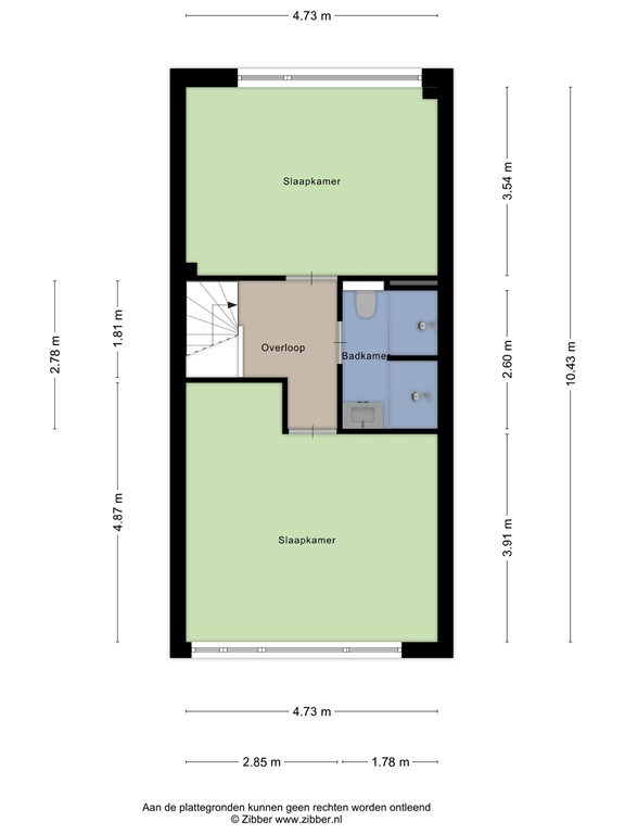
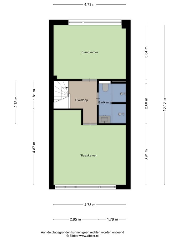
Op de tweede verdieping bevinden zich twee zeer royale slaapkamers (voorheen drie slaapkamers, eenvoudig terug te brengen in de originele staat). Er bestaat zelfs een mogelijkheid voor een 4e slaapkamer, wat het ideaal maakt voor gezinnen of voor wie extra ruimte wenst. De badkamer is in 2020 vernieuwd, uitgevoerd in moderne stijl en beschikt over twee ruime inloopdouches, wastafelmeubel en toilet.
Balkon
Royaal balkon bereikbaar via schuifpui vanuit de keuken met een vaste trap naar de tuin.
Tuin
Aangelegde achtertuin op West met nieuwe schutting en vrije achterom.
Bijzonderheden
-Eigen oprit voor 2 auto's met voorbereiding elektrische lader, garage en diepe tuin.
-De woning is volledig geïsoleerd (muren, dak en vloer) en duurzaam uitgevoerd met HR++ beglazing, een nieuw dak (oktober 2025) en 12 zonnepanelen met een opbrengst van circa 3.000 kWh per jaar. Daarnaast zijn de voor- en achtergevel in 2023 vernieuwd en geïmpregneerd.
-Automatisch verwarmingssysteem met app.
-De moderne afwerking met strakke stucwanden en -plafonds, fraaie vloeren en verzonken, automatisch en via app bedienbare inbouwspots zorgen voor een luxe en eigentijdse uitstraling.
-Met energielabel A, lage energielasten en alle voorzieningen zoals scholen, winkels en sportfaciliteiten in de directe omgeving, is dit een woning die comfort, ruimte en duurzaamheid perfect combineert.
-Een fantastische ligging in de gemeente Valkenswaard met alle voorzieningen op kindvriendelijke locatie met speelgelegenheid in de directe omgeving.
-Diverse supermarkten, scholen en sportgelegenheid in de directe omgeving. Het centrum van Valkenswaard met zeer uitgebreide voorzieningen (o.a. winkels, restaurants, theater en bibliotheek) op fietsafstand.
-Eindhoven centrum 15 autominuten.
-HTC en ASML Veldhoven 15 autominuten en 20 fietsminuten.
Een royale, moderne en instapklare woning op een fijne locatie. Een unieke kans en absoluut een bezichtiging waard.
Plattegronden
180908365_1601349_hoppa_begane_grond_first_design_20260107_a0672d.jpg
180908365_1601349_hoppa_eerste_verdiepi_first_design_20260107_a1de00.jpg
180908365_1601349_hoppa_tweede_verdiepi_first_design_20260107_33648c.jpg
181178362_hoppad_7_tweede_verdiepi_first_design_c_20260114_6cf8ca.jpg