Beschrijving

Zeer goed onderhouden, royale tussenwoning gelegen op fijn perceel met berging en vrije achterom in de wijk Hanevoet nabij het winkelcentrum, ASML en HTC, de uitvalswegen en het centrum van Eindhoven. De woning is onder andere voorzien van een lichte woonkamer aan de voorzijde en ruime keuken aan de achterzijde. Op de 1e verdieping zijn er 3 ruime en lichte slaapkamers en een lichte badkamer. Op de 2e verdieping een zeer ruime 4e slaapkamer. Geheel voorzien van kunststof kozijnen met HR++ glas en 12 zonnepanelen.

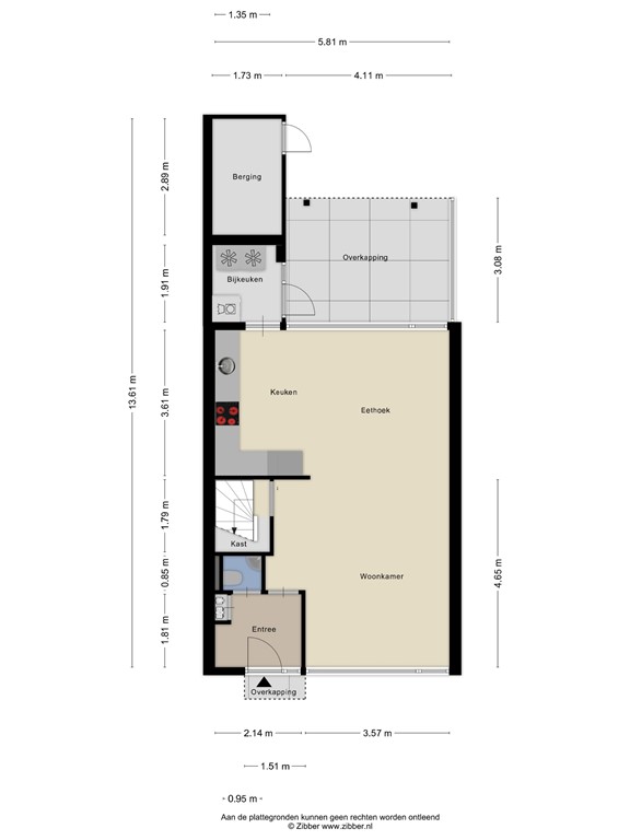
Indeling

Hal met vernieuwde meterkast en modern betegeld toilet met vrijhangend closet en fonteintje. 

Ruime en lichte woonkamer met grote raampartijen, fraaie pvc-vloer (2022) en schuifdeur naar provisiekast en trapopgang. De woonkamer is aan de voorzijde voorzien van een zonnescreen.

Aan de achterzijde gelegen keuken met royale L-vormige keukenopstelling met kastenwand en werkopstelling met spoelbak, quooker (2024), inductiekookplaat (2025), afzuigkap, koelkast en vaatwasser.

Praktische bijkeuken met aansluiting wasapparatuur en loopdeur naar tuin.

Eerste verdieping

Ruime overloop met toegang tot 3 ruime en lichte slaapkamers met laminaatvloer en elektrische rolluiken.

Lichte badkamer met royale inloopdouche, wastafelmeubel, 2e toilet en handbediend rolluik.

Tweede verdieping

Via vaste trap toegang tot overloop met toegang tot 2 bergruimtes waarvan 1 met c.v.-opstelling (2017). 

4e Slaapkamer met dakkapel met elektrisch rolluik. Deze slaapkamer is te splitsen in 2 slaapkamers.

Tuin

Diepe achtertuin met overdekt terras, berging, gazon, borders en vrije achterom.

Bijzonderheden

Geheel voorzien van kunststof kozijnen met HR++ glas.
Voorzien van airconditioning (verkoelen en verwarmen) 2022.
Fantastische ligging nabij het centrum, winkelcentrum, uitvalswegen, ASML en HTC en parken.
Winkelcentrum Kastelenplein is goed uitgerust met winkels en onder andere dokterspost, apotheek en fysiotherapie.

Kenmerken